Philadelphia Rowhome

Spaces . Objects . Artworks . Research

Philadelphia, PA USA

 

The Rowhome is situated in Fairmount, around the corner from the Philadelphia Museum of Art.

 
 
 
 

The goal was to open up the previously divided floorplan, pulling visitors through the space to the back deck. Curvilinear forms and light create a sense of openness in the narrow space.

 
 
 

The project evolved through construction, with new opportunities emerging through lessons learned from demolition, prototypes, and mockups. Architect involvement in the construction process is crucial for carrying design intent through the finished work.

 
 

First Floor

 

In renovation projects, analyzing existing conditions is the first step in providing innovative solutions with maximum impact. In this project, spatial flow was created by relegating storage and utilities to the perimeter and opening up the central space for circulation.

 
 

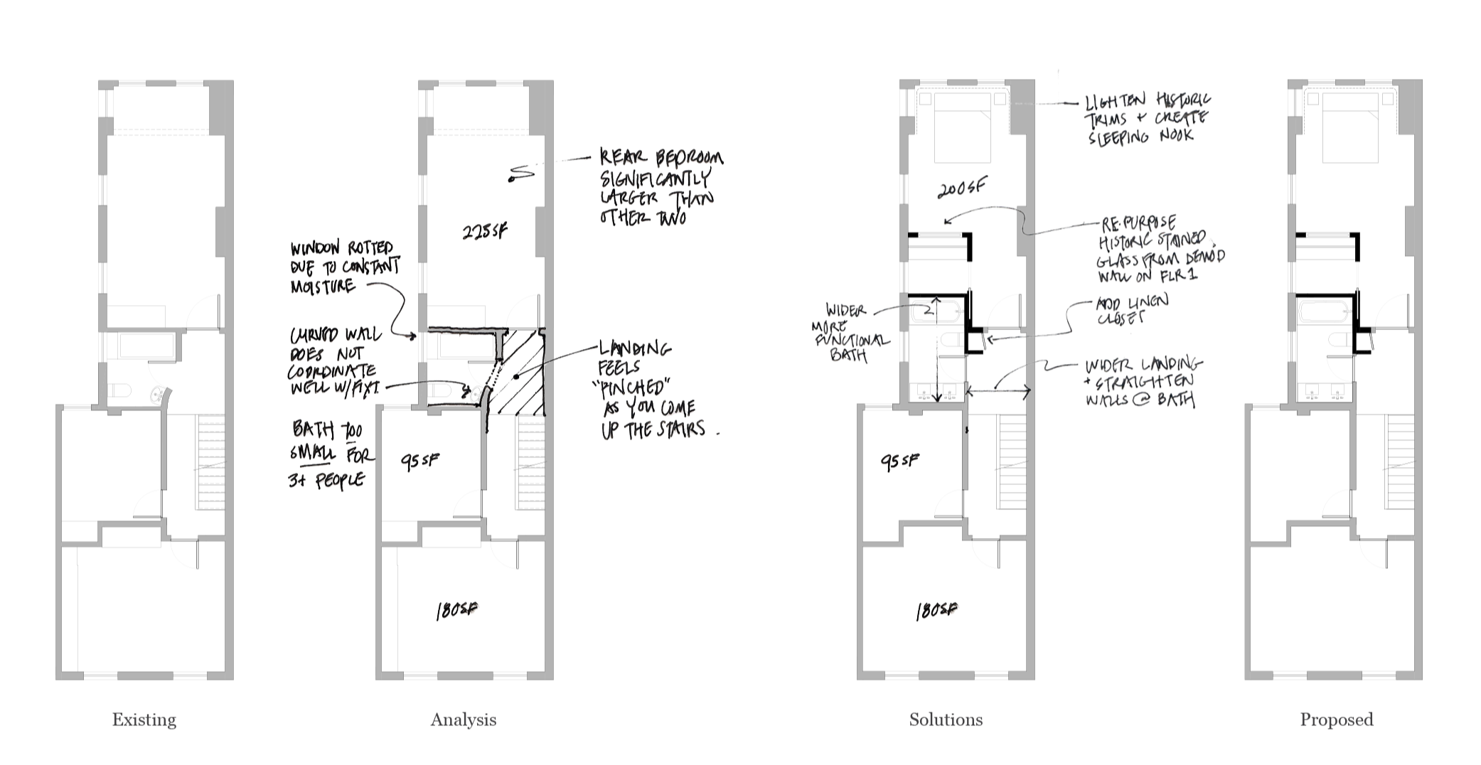
Second Floor

 

The second floor bathroom was made more functional, and a new walk-in-closet was added to the back bedroom. Curvilinear forms discovered on the second floor were brought down to the first floor powder room and kitchen.

 
 

Finished photographs by Kirsten Strauss.